Relais Petite Enfance

Leuville-sur-Orge (91)

Maîtrise d’ouvrage : Ville de Leuville-sur-Orge

Maîtrise d’œuvre : Ludovic Trouilleux architecte associé à JJ Chastang architecte (mandataire)

Montant des travaux :  380K€ HT

Surface : 110m² SDP

Livraison : 2016

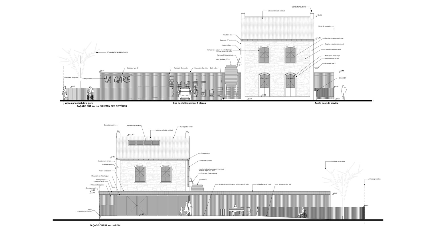
La transformation de cette ancienne gare en relai petite enfance a été l’occasion d’honorer la mémoire de son train mythique, l'Arpajonnais, qui a joué un rôle majeure dans l’histoire de la ville et celle de la région.

 

Tout a été pensé et mis en œuvre pour redonner à ce bâtiment son image de gare : le hall d’entrée et le préau prennent place sous un auvent métallique dont l’implantation et la forme rappellent le quai d’une gare ; Le choix du mobilier (bancs, horloge,…), d’un petit train aux couleurs du train originel le long du quai comme jeu pour les enfants, complètent le dispositif.